Pas de Calais Wimille Stp240 Buschwindröschen Stp241 Crokus II
English Translation
Merci à Jean Marie Brams pour les photographies
Historique Voir ICI
History Click HERE
Ces points d'appui Allemands codifié Stp 240 Buschwindröschen composé de deux bunkers de type 501, quatre bunkers de type 621, deux 630, deux 634, huit Vf58c et divers ouvrages.
et Stp 241 Crokus II sont situés sur des parcelles agricoles privées à Wimille, Ils sont composés de divers bunkers de type 501, 621, 630, 634, Vf58c ainsi que de divers ouvrages.
| NB les plans et les textes sont tirés des sites cités en hyper liens |
Bunker Type 501
Les bunkers 501 et 502 ont un plan (regelbau) de 1939 et vont être construits jusqu'à ce que les regelbauten 621 et 622 soient réalisés sur le terrain. Les blockhaus 501 et 502 furent à l'origine conçu pour l'armée de terre allemande. Le R 501 était un abris d'une pièce pour 10 soldats (prévus - dépassés si nécessaire) qui y logeaient en permanence. Le R 502 était un abris à double pièce pour 20 soldats (prévus - dépassés si nécessaire). Ces versions étaient dites de combat tandis que les versions présentes en presqu'île de Crozon sont des versions dites de service pour 12 et 24 hommes respectivement. Les bunkers de service protègent des artilleurs durant des bombardements aériens hostiles mais n'ont pas vocation à être un habitat durable. Le personnel y est relevé plusieurs fois par jour. Les six 501 et deux 502 de la batterie du Grand Gouin sont directement inclus dans les rampes des encuvements des canons de marine dont les tirs étaient destinés aux navires de surface voulant approcher de Brest. En l'absence de tirs de l'artillerie de marine, les artilleurs n'avaient aucune raison de résider sur place d'autant que durant les attaques aériennes, les canons de la flak (DCA allemande) se chargeaient de la défense aérienne avec des consignes de tirs spécifiques incompatibles avec la défense de côte.Les premiers bunkers 501 et 502 étaient construits sans ferraillage mais avec des murs et plafonds de 2 m d'épaisseur (les normes précédentes étaient à 1 m au plafond et 50 cm en mur). Le ferraillage est ensuite introduit pour mieux résister aux explosions diverses. Cela ne va pas suffire face à l'augmentation des capacités de destruction des bombes américaines que les Anglais emploient. Ce ne seront que les derniers 501 et 502 qui auront des poutres métalliques au plafond respectant ainsi la nouvelle norme de construction en 1942 commandée par Hitler. Les derniers 501 et 502 vont se débarrasser de leur ventilation manuelle à manivelles et augmenter leur résistance aux attaques par gaz.
Le regelbau 501
Blindages :
1 porte 19P7
1 porte 434P7
1 volet de défense 48P8
dimensions 9.9m x 9m x 5.1m
356 m3 de béton
1 couloir d'accès de combat avec un volet de défense, 1 couloir sas anti-gaz, 1 pièce, 1 issue de secours (certaines versions)
détermination allemande : gruppenunterstand
1ère construction au 4ème trimestre 1939 et construit jusqu'au 4ème trimestre 1942
nombre : de 658 à 825 selon les sources
Bunker Type 621
 |
Le Regelbau 621 succède au modèle 501 dans les programmes de construction, à partir de l'année 1943. Conservant une capacité de logement de 10 soldats, avec une salle de troupe dont la surface n'est que très peu augmentée, il faut chercher les principales évolutions apportées par ce modèle à un autre niveau :
Le modèle 621 est, lui, doté de deux entrées rejoignant un sas antigaz commun, dans lequel se trouve l'accès à la salle de troupe. Ainsi, l'issue de secours qui existait dans le modèle 501 n'a plus lieu d'être et disparaît du plan. L'épaisseur du mur séparant le local de troupe des entrées est portée à 1 mètre.
Le nouvel abri est prévu pour être semi-enterré, ce qui implique des descentes d'escaliers dans les deux accès, alors que l'entrée du 501 était de plain-pied. Notons toutefois que nous avons quelques exemples de 621 dotés d'accès de plain-pied, mais qui s'expliquent par des caractéristiques particulières du terrain.
Enfin, un poste d'observation en Ringstand pouvant également servir de poste de défense est ajouté au plan de l'abri, à droite ou à gauche.
 |
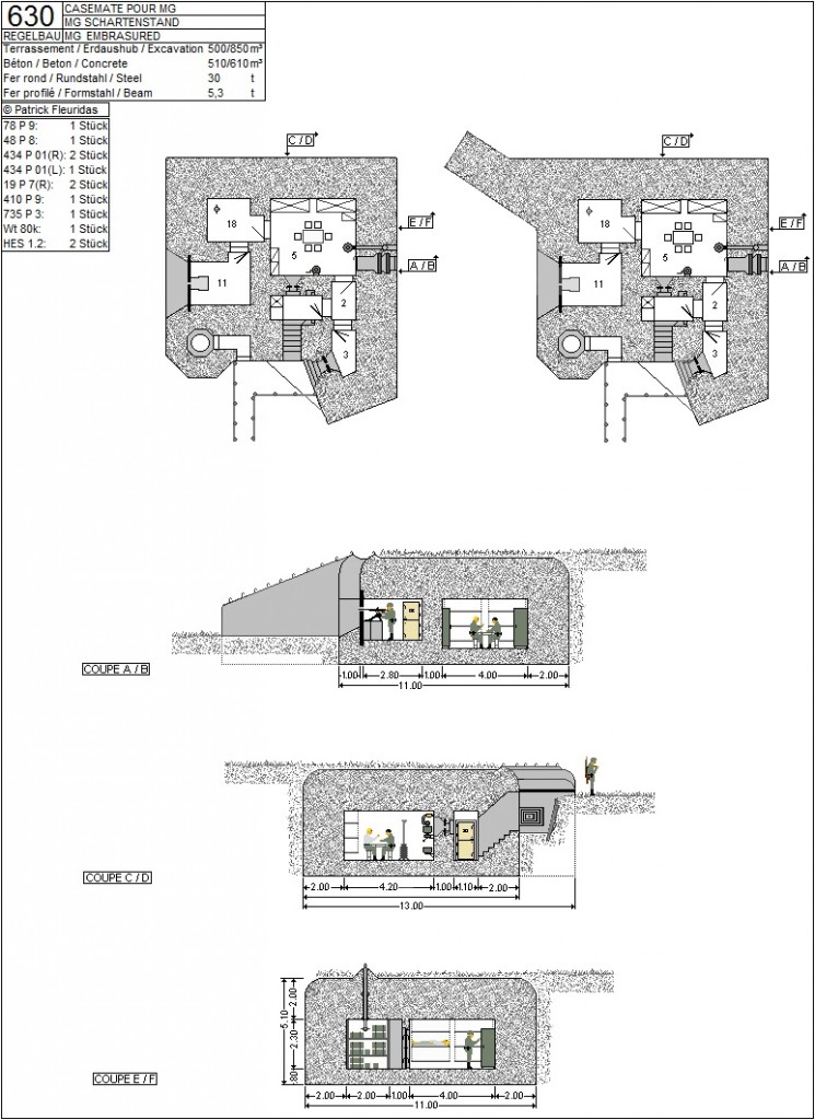
Dans le bunker il y a une salle pour l’équipage (6 hommes) avec portes étanches et système d’évacuation des gaz.Quelques caractéristiques générales : fouille : 400m³, béton : 610m³, fer rond : 30 tonnes, équipage : 6 hommes, longueur : 13 mètres, largeur : 10,80 mètres, hauteur : 5,1 mètres, cloisons : 0,80 mètre, murs et toit : 2 mètres.
Type 634
Type V58 C
 |
Le Tobrouk Vf8 - MG Stand für 2 Mann est basé sur un plan de bunker qui pourrait dater d'avant la seconde guerre mondiale, il "commence" la guerre et poursuit ses constructions jusqu'en mai 1943 avec des hauteurs de plafond très variables sur le terrain. Au troisième trimestre 1942, un nouveau plan issu du Vf8 apparaît dans les projets de construction de l'organisation Todt. Le tobruk Vf58 décliné en deux versions (c et d) est appelé à remplacer le bunker Vf8. Le magasin à munitions (arrière-salle - unterschlupfraum) est agrandi de 15cm sur la longueur pour mieux stocker les différents projectiles. La porte d'entrée et la largeur de l'escalier menant à la chambre de tir bénéficie de largeurs diverses de 0.60m à 0.80m. La hauteur de la porte d'entrée peut aussi varier énormément selon l'exposition aux tirs ennemis. La chambre de tir ne change pas et est commune en espace au sol au tobrouk Vf25. Epaisseur des murs : 0.40m en sol tendre. En sol rocheux, les épaisseurs, par économie, sont réduites.
Si le tobrouk Vf8 avait deux fonctions essentielles, être un poste de tir enterré pour mitrailleuse et occasionnellement être un poste d'observation, les usages du Vf58 se multiplient.
Poste de mitrailleuse de différents modèles avec blindage de protection ou pas. Mitrailleuse anti-aérienne possible, mortier, lance-grenade, lance-flamme, poste de transmission de signaux lumineux, etc. Différents systèmes métalliques permettent l'adaptation de l'armement sur l'ouverture à ciel ouvert de la salle de tir munie d'une colerette très variable selon les usages et les dates de fabrication. Le tobrouk est nommé ainsi après la campagne de Rommel et les combats de la ville Lybienne durant laquelle de l'armement et des hommes s'étaient ensablés (souvent des Italiens) pour tenir le siège de plusieurs mois en 1941. Suite à cette bataille l'appellation ringstand se mue en tobruk - tobrouk en souvenir de l'éphémère victoire allemande. Néanmoins, le fait de mettre un soldat dans un trou, en position verticale, est un procédé ancien nettement amélioré dès la première guerre mondiale.
Le nouvel aménagement se fait dans la pièce d'entrée qui est plus grande et contient désormais un stock de munitions plus élevé que dans les Vf8. Le Bauform (nouveau nom de la norme de construction) 58C (Bf 58C) contenait 40 000 à 50 000 balles de MG (mitrailleuse) et le Bf 58d 720 grenades en 72 caisses pour un Granatwerfer (mortier). Le Vf58C (Bf 58C) a son toit de salle de tir (ringstand) octogonal tandis que celui du VF 58D (Bf 58D) est circulaire. La chambre de tir est sensiblement la même pour les modèles de tobrouk. Par contre la différence essentielle entre un tobruk 58C et 58D est l'orientation de l'escalier intérieur en biais dans la version D. Les bunkers Vf8, Vf58c ou d sont servis par deux soldats. Le nombre d'exemplaires construits est estimé à 25000, ce qui en fait le bunker le plus fréquent de la seconde guerre mondiale.